Mehr Platz, mehr Möglichkeiten
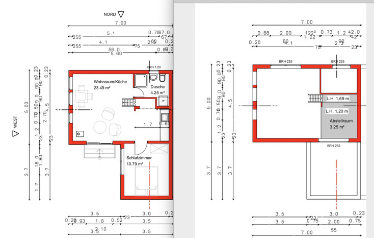
Das Klötzchen L48 bietet mit rund 48 m² Wohnfläche eine großzügige Variante im Magnumhaus-System. Der L-förmige Grundriss schafft eine offene und zugleich strukturierte Raumaufteilung, die besonders für Paare oder Familien attraktiv ist. Dank ökologischer Bauweise und flexibler Gestaltungsmöglichkeiten ist das L48 ein nachhaltiges Mikrohaus mit viel Komfort.
Hier noch das Bild in Skizzenform umwandeln und einsetzen
Besonderheiten:
- Außenmaße: ca. 8 × 6 m (L-Form)
- Wohnfläche: ca. 48 m²
- Raumkonzept: erweiterte L-Form mit mehr Stauraum und klarer Raumaufteilung
- Ökologische Bauweise: Massivholz, bevorzugt regionales Holz
- Energieeffizienz: hervorragende Dämmwerte, EnEV/GEG-konform
- Flexibilität: individuell gestaltbar, Erweiterungen möglich

Für wen eignet sich das L48?
- Paare, die ein großzügiges Zuhause mit mehr Stauraum suchen
- Familien, die zusätzlichen Platz für Kinder oder Gäste benötigen
- Menschen mit Homeoffice-Bedarf, die den L-förmigen Grundriss für Arbeits- und Wohnbereiche nutzen möchten
- Investoren, die nachhaltige Wohneinheiten mit größerer Fläche anbieten möchten
Bilder & Eindrücke


??? Erleben & Probewohnen
Besichtigungstermine und Probewohnen sind in Wredenhagen möglich. So kannst du das Klötzchen L48 live erleben und die Qualität sowie das Raumgefühl selbst erfahren.
Kurze Material-Hinweise auf jeder Modellseite (z. B. ein kleiner Abschnitt oder Bulletpoint: „Nachhaltige Massivholzbauweise, bevorzugt regionales Holz“).
Zusätzlich: Von den Modellseiten einen Link zur Materialseite setzen („Mehr über unsere Materialien erfahren →“).
Preis:
Ab 149.900,00 Brutto









