Offenes Wohnen mit mehr Raumgefühl
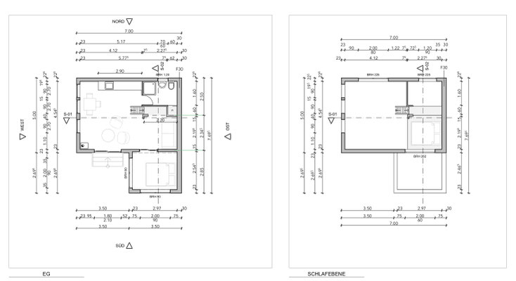
Das Klötzchen L45 erweitert das Magnumhaus-System um eine Variante mit L-förmigem Grundriss. Mit rund 45 m² Wohnfläche bietet es ein großzügiges Raumgefühl und eine offene Gestaltung, die besonders für Paare oder kleine Familien attraktiv ist. Die Kombination aus ökologischer Bauweise und flexibler Planung macht das L45 zu einem nachhaltigen und vielseitigen Mikrohaus.
Besonderheiten:
- Außenmaße: ca. 7,5 × 6 m (L-Form)
- Wohnfläche: ca. 45 m²
- Raumkonzept: offener Grundriss in L-Form, ideal für Wohn- und Essbereich
- Ökologische Bauweise: Massivholz, bevorzugt regionales Holz
- Energieeffizienz: hervorragende Dämmwerte, EnEV/GEG-konform
- Flexibilität: individuell gestaltbar, Erweiterungen möglich

Für wen eignet sich das L45?
- Paare, die ein großzügiges Zuhause mit offener Raumgestaltung suchen
- Kleine Familien, die Wert auf flexible Nutzung legen
- Menschen mit Homeoffice-Bedarf, die den L-förmigen Grundriss für Arbeits- und Wohnbereiche nutzen möchten
- Investoren, die nachhaltige Wohneinheiten mit besonderem Grundriss anbieten möchten
Bilder & Eindrücke





??? Erleben & Probewohnen
Besichtigungstermine und Probewohnen sind in Wredenhagen möglich. So kannst du das Klötzchen L45 live erleben und die Qualität sowie das Raumgefühl selbst erfahren.
Kurze Material-Hinweise auf jeder Modellseite (z. B. ein kleiner Abschnitt oder Bulletpoint: „Nachhaltige Massivholzbauweise, bevorzugt regionales Holz“).
Zusätzlich: Von den Modellseiten einen Link zur Materialseite setzen („Mehr über unsere Materialien erfahren →“).
Preis:
Ab 145.900 €








