Mehr Raum, klare Architektur
Das Klötzchen A45 erweitert das Magnumhaus-System um eine großzügige Variante mit klassischem Satteldach. Mit rund 45 m² Wohnfläche bietet es mehr Platz für Familien oder Menschen, die ein kompaktes, aber komfortables Zuhause suchen. Die Kombination aus ökologischer Bauweise und flexibler Planung macht das A45 zu einem nachhaltigen und vielseitigen Mikrohaus.
Hier noch 2 Spalten mit Bild und Besonderheiten! Bild geneieren lassen im Stil der anderen Zeichnungen!
Besonderheiten
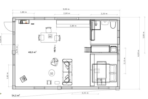
- Außenmaße: ca. 6 × 7,5 m
- Wohnfläche: ca. 45 m²
- Raumkonzept: großzügiger Grundriss mit klassischem Satteldach
- Ökologische Bauweise: Massivholz, bevorzugt regionales Holz
- Energieeffizienz: hervorragende Dämmwerte, EnEV/GEG-konform
- Flexibilität: individuell gestaltbar, Erweiterungen möglich
Für wen eignet sich das A45?
- Familien, die mehr Platz benötigen
- Paare, die ein komfortables Zuhause mit klassischem Dach bevorzugen
- Menschen mit Homeoffice-Bedarf, die zusätzlichen Raum nutzen möchten
- Investoren, die nachhaltige Wohneinheiten mit größerer Fläche anbieten möchten
Bilder & Eindrücke



??? Erleben & Probewohnen
Besichtigungstermine und Probewohnen sind in Wredenhagen möglich. So kannst du das Klötzchen A45 live erleben und die Qualität sowie das Raumgefühl selbst erfahren.
Kurze Material-Hinweise auf jeder Modellseite (z. B. ein kleiner Abschnitt oder Bulletpoint: „Nachhaltige Massivholzbauweise, bevorzugt regionales Holz“).
Weitere Varianten verfügbar:
Klötzchen A54
- 6 × 9 m bebaute Fläche
- Wohnfläche ca. 48 m² + Emporen ca. 7 m²
- Preis: nicht direkt genannt, aber höher als A45
- Preis: auf Anfrage


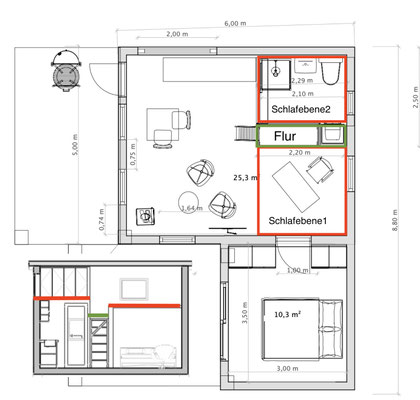
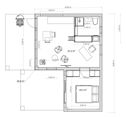
Klötzchen L42
- Grundriss-Variante mit ca. 42 m² Wohnfläche
- Preis: nicht direkt genannt, ebenfalls Orientierung abhängig von Ausstattung
- Preis: auf Anfrage



Zusätzlich: Von den Modellseiten einen Link zur Materialseite setzen („Mehr über unsere Materialien erfahren →“).
Preis:
Magnumhaus Klötzchen A45
45 m² Wohnfläche – großzügig, modern und bezugsfertig.
Ab 144.000 € schlüsselfertig
Hinweis: Transport, Aufbau und Fundament sind nicht im Kaufpreis enthalten. Details zu Zusatzkosten findest du auf unserer Seite Transport & Aufbau. Bitte beachten: Preise können je nach Bau- und Holzmarkt
Oder
- Hauspreis: ab 144.000 € (schlüsselfertig)
- Bebaute Fläche: 45 m² (5 × 9 m)
- Wohnfläche inkl. Emporen: ca. 46 m²
- Deckenhöhe: 3,20 m
- Dach: fast Flachdach (2 cm pro Meter)
- Hinweis: Preis ist Orientierung, da Bau- und Holzmarkt stark schwankt.
| Leistung | Kosten (ab) |
|---|---|
| Hauspreis (schlüsselfertig) | 144.000 € |
| Wohnfläche inkl. Emporen | ca. 46 m² |
| Transport & Aufbau | separat kalkuliert |
| Fundamente (Beton/Schrauben) | ca. 6.000–7.500 € |









